NUOVO Attico di Prestigio ampio

In vendita
Appartamento
Fano
630.000 €
Descrizione
KIMIA HOME propone un ESCLUSIVO ATTICO di NUOVA COSTRUZIONE, tempo dalla prenotazione 18 mesi.

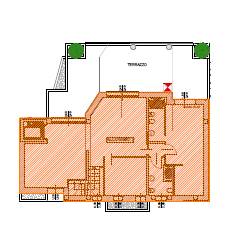
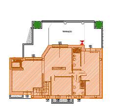
Ecco un riassunto delle caratteristiche principali che rendono questa proprietà un'opportunità unica: Caratteristiche Principali dell'Attico a Fano Posizione: Fano, città storica delle Marche, vicina sia alle spiagge che al centro storico medievale. Tipologia: Attico moderno su due livelli. Spazi Esterni: Terrazza panoramica di oltre 50 mq, ideale per momenti di relax o cene all'aperto. Interni: Due camere da letto Uno studio Tre bagni Locale indipendente al piano inferiore (uso ufficio o quarta camera) Comfort e Accessibilità: Ascensore privato con accesso diretto all'appartamento Garage doppio incluso Efficienza Energetica: Sistema fotovoltaico Riscaldamento a pavimento Autonomia energetica Vantaggi Esclusivi Personalizzazione: Essendo attualmente in costruzione, offre la rara possibilità di personalizzare gli spazi interni in base alle proprie esigenze e gusti. Stile di Vita: Unisce la riservatezza e la modernità di una residenza esclusiva alla comodità di avere a portata di mano il mare, il centro e gli eventi culturali di Fano.

Questa proprietà rappresenta un'opzione eccellente per chi cerca una soluzione abitativa moderna, efficiente e con ampi spazi esterni in una delle località più affascinanti della costa marchigiana.

KIMIA HOME Viale B.Buozzi, 23 Pesaro (Pu)
0721/1512743
www.kimiahomeimmobiliare.it
Caratteristiche principali
Codice:
V000059
Città:
Fano
Categoria:
Appartamento
Locali:
4
Mq:
158
Mq Box:
32
Classe energetica:
A4
Cookie preference