Ampio Appartamento Duplex signorile in centro a Fano

In vendita
Appartamento
Fano
670.000 €
Descrizione
KIMIA HOME IMMOBILIARE propone in VENDITA Splendida soluzione Immobiliare signorile di prestigio. Completa di cucina arredata parzialmente.

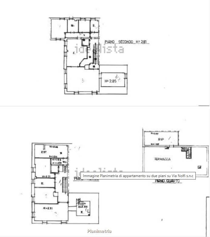
Nel cuore di Fano, un'eleganza che racconta una storia.
330 mq di charme nel centro storico, perfetti per chi sogna spazi da vivere e condividere.

Composizione:
Due ingressi indipendenti con ascensore
Camino nel soggiorno
Due cucine in muratura
Quattro bagni
Piccola corte interna

Ideale per genitori e figli oppure per avviare una residenza di charme o attività ricettiva Bnb.
Materiali di pregio, camere luminose, arredamento parziale pronto ad accogliere il tuo stile.

Possibilità di acquistare garage a parte.

LIBERO.

Vivi la tua nuova storia a Fano.
Contattaci per visitarlo!

Mia Scorcia
kiMia home
0721/1512743
Caratteristiche principali
Codice:
V000044
Città:
Fano
Categoria:
Appartamento
Locali:
6
Mq:
350
Classe energetica:
In fase di valutazione
Accessori
Ascensore
Camino
Cookie preference